+36 (30) 697 0000

Budapest III. kerület Eladó Ház Jutas utca
Csak nálunk!

Budapest - Eladó Ház

Elhelyezkedés
III. kerület, Ürömhegy, Jutas utca
Újépítésű projekt
MODERN IKERHÁZ A HEGYTETŐN
Alapterület
128 m2
Ár
228.000.000 Ft
Hirdetés azonosító
345763

MODERN IKERHÁZ A HEGYTETŐN

Leírás

Az ingatlan Ürömhegy tetején, új építésű ingatlanok szomszédságában helyezkedik el, kiváló infrastruktúrával és csendes környezettel. Átadása 2026 közepére várható.
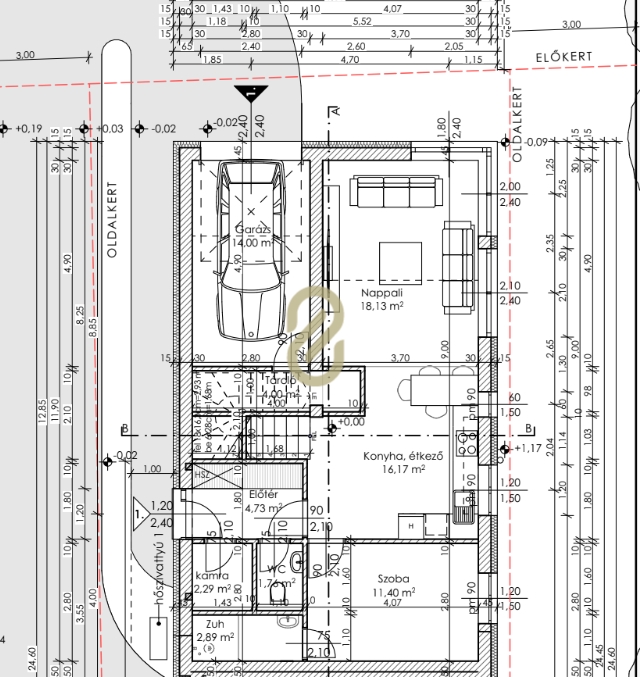
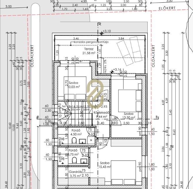
Az ikerházi lakás két szintes kialakítással kerül megépítésre, 128 négyzetméteres alapterülettel, 22 nm-es terasszal, cca 300 négyzetméteres telekterülettel. A ház nem rendelkezik pince vagy beépíthető tetőtérrel, azonban duplakomfortos kialakításának köszönhetően minden igényt kielégít. A 15 cm szigetelés biztosítja a jó hőszigetelést, az A+ energia besorolás pedig alacsony rezsiköltséget eredményez. A fűtés rendszer korszerű hőszivattyús. A kertre néző kilátás kellemes környezetet biztosít.
Belső elrendezése részben még módosítható.

A projektben elérhető még mindkét ikerfél.

Műszaki paraméterek:
Szaniterek: Grohe, Hanasgrohe, Bugnatese
Elektromos szerelvények: Legrand
Garázsajtó: Hörmann
Burkolat: magas minőségű lapok 12.000 ft értékig
Részletes tervdokumentáció rendelkezésre áll.

Irodánk segíti ügyfeleit abban az esetben is amennyiben a vásárláshoz:
-ingatlant kell értékesíteni
-hitelre lesz szüksége
-állami támogatást szeretne igénybe venni
-asztalosra, kertészre egyéb szakemberre van szüksége

Várom hívását!

Az ingatlan elhelyezkedése

Kapcsolati adatok

Sződy Zsuzsa

Sződy Zsuzsa

tanácsadó, okleveles ingatlanközvetítő

+36-30-128 7474

zsuzsa.szody@homeforme.hu

Érdeklődjön az ingatlanról, e-mailben!

Hasonló ingatlanok

Hívás