+36 (30) 697 0000

Budapest III. kerület Eladó Ház Jutas utca
Csak nálunk! Foglalt

Budapest - Eladó Ház

Elhelyezkedés
III. kerület, Ürömhegy, Jutas utca
Újépítésű projekt
MODERN IKERHÁZ A HEGYTETŐN
Alapterület
132 m2
Ár
246.000.000 Ft
Hirdetés azonosító
345764

MODERN IKERHÁZ A HEGYTETŐN

Leírás

Az ingatlan Ürömhegy tetején, új építésű ingatlanok szomszédságában helyezkedik el, kiváló infrastruktúrával és csendes környezettel. Átadása 2026 közepére várható.
Az ikerházi lakás két szintes kialakítással kerül megépítésre, 135 négyzetméteres alapterülettel, 22 nm-es terasszal, cca 600 négyzetméteres telekterülettel. Az ingatlanban igény esetén még kialakítható + 2 szoba, valamint a kertben elfér még egy medence is. A ház nem rendelkezik pincével vagy beépíthető tetőtérrel, azonban duplakomfortos kialakításának köszönhetően minden igényt kielégít. A 15 cm szigetelés biztosítja a jó hőszigetelést, az A+ energia besorolás pedig alacsony rezsiköltséget eredményez. A fűtés rendszer korszerű hőszivattyús. A kertre néző kilátás kellemes környezetet biztosít.
Belső elrendezése részben még módosítható.

2. lakás

Földszint:
Előtér 4,1 m2
Wc 1,51 m2
Nappali 18,27 m2
Konyha-Étkező 17,8 m2
Közl. 1,65 m2
Fürdő 4,5 m2
Garázs 14 m2
Tároló 4,06 m2

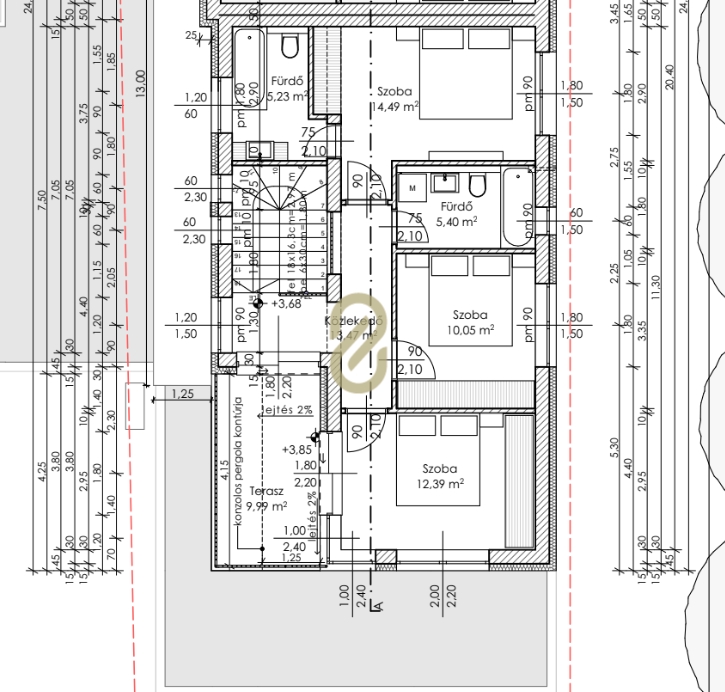
Emelet
Közlekedő (lépcsővel) 13,47 m2
Szoba 12,39 m2
Szoba 10,05 m2
Fürdő 5,4 m2
Szoba 14,49 m2
Fürdő 5,23 m2

Összesen 126,92 m2
+ Terasz 9,99 m2

lakás, eladási m² 131.91

A projektben elérhető még mindkét ikerfél.

Műszaki paraméterek:
Szaniterek: Grohe, Hanasgrohe, Bugnatese
Elektromos szerelvények: Legrand
Garázsajtó: Hörmann
Burkolat: magas minőségű lapok 12.000 ft értékig
Részletes tervdokumentáció rendelkezésre áll.

Irodánk segíti ügyfeleit abban az esetben is amennyiben a vásárláshoz:
-ingatlant kell értékesíteni
-hitelre lesz szüksége
-állami támogatást szeretne igénybe venni
-asztalosra, kertészre egyéb szakemberre van szüksége

Várom hívását!

Az ingatlan elhelyezkedése

Kapcsolati adatok

Sződy Zsuzsa

Sződy Zsuzsa

tanácsadó, okleveles ingatlanközvetítő

+36-30-128 7474

zsuzsa.szody@homeforme.hu

Érdeklődjön az ingatlanról, e-mailben!

Hasonló ingatlanok

Hívás