Budapest - Eladó Lakás
XI. kerület, Kelenföld
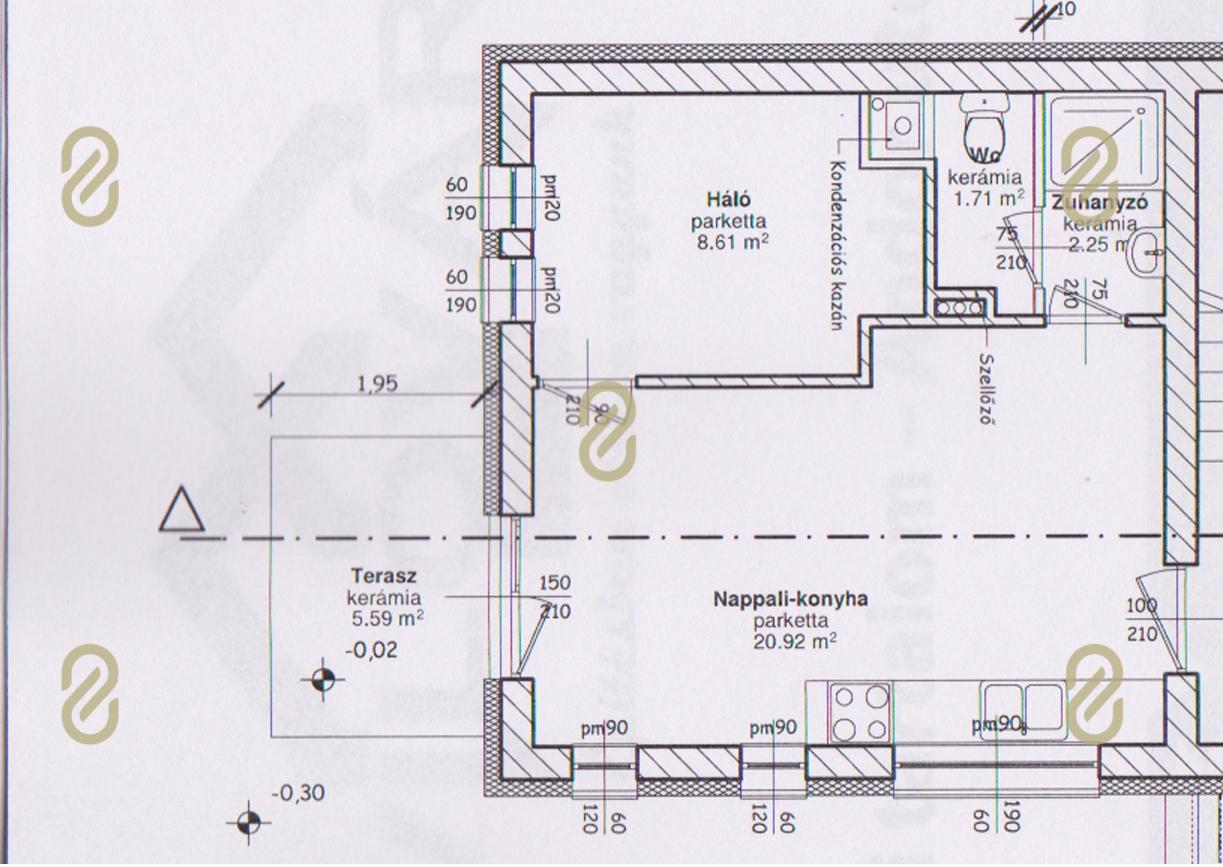
34 m2
79.900.000 Ft
345201
Leírás
SAJÁT KERTTEL RENDELKEZŐ, ÚJSZERŰ ÁLLAPOTÚ, FÖLDSZINTI LAKÁS ELADÓ KELENFÖLDÖN!
Megvételre kínálok egy földszinti, amerikai konyhás nappalival és egy külön hálószobával rendelkező, saját kertkapcsolatos lakást Budapest XI. kerületében, Kelenföld zöldövezeti, családiházas, kis társasházas részén. Az ingatlan egy 6 lakásos, kiváló lakóközösségel rendelkező társasházban található.
A lakás újszerű állapotban van, világos, jól kihasznált terekkel és modern elrendezéssel. Az alacsony rezsi és a saját, kizárólagos kert kényelmes és gazdaságos otthont biztosít.
A lakáshoz felszíni gépkocsibeálló is tartozik. Az ingatlan azonnal költözhető, tehermentes, 1/1 tulajdonban van.
✨ Főbb jellemzők:
Földszinti elhelyezkedés, közvetlen kertkapcsolattal
Amerikai konyhás nappali + 1 külön hálószoba
Újszerű állapot, igényes kialakítás
Alacsony rezsi, energiatakarékos fenntartás
Saját, felszíni gépkocsibeálló, ennek vételára 4 MFt
Azonnal költözhető
Három rétegű, hang és hőszigetelő nyílászárók
Ablakokon redőny, teraszajtón szúnyogháló
Riasztó és klíma előkészítés
Beépített, részben gépesített konyha
Közös költség 18,000 Ft ami tartalmazza a lépcsőház takarítást, hulladékszállítást, felszíni parkolók gondozását.
Kiváló elhelyezkedés: közel a metróhoz, buszhoz, vasúthoz és bevásárlási lehetőségekhez
Központi környezet Kelenföld kedvelt részén.
A lakás ideális választás egyedülállóknak vagy pároknak, akik értékelik a központi kényelmet.
További kérdéseivel vagy megtekintéssel kapcsolatban várom megtisztelő hívását.
Kapcsolati adatok
Érdeklődjön az ingatlanról, e-mailben!
Hasonló ingatlanok
Budapest III. kerület (Aranyhegy), Aranyhegyi út
PANORÁMÁS 75 NM-ES LAKÁSOK ARANYHEGYEN LEKÖTHETŐK!
Budapest III. kerület (Testvérhegy), Kapaszkodó utca
Kapaszkodó utca félszuterén