+36 (30) 697 0000

Budapest III. kerület Eladó Ház
Csak nálunk!

Budapest - Eladó Ház

Elhelyezkedés
III. kerület, Ürömhegy
Újépítésű projekt
LUXUS IKERHÁZ
Alapterület
140 m2
Ár
275.000.000 Ft
Hirdetés azonosító
347931

IKERHÁZI LAKÁS NAPPALI+3 SZOBA+DOLGOZÓ, DUPLAKOMFORT, 500 NM KERT.

Leírás

Eladó magas műszaki tartalmú, világos ikerház nagy telekkel

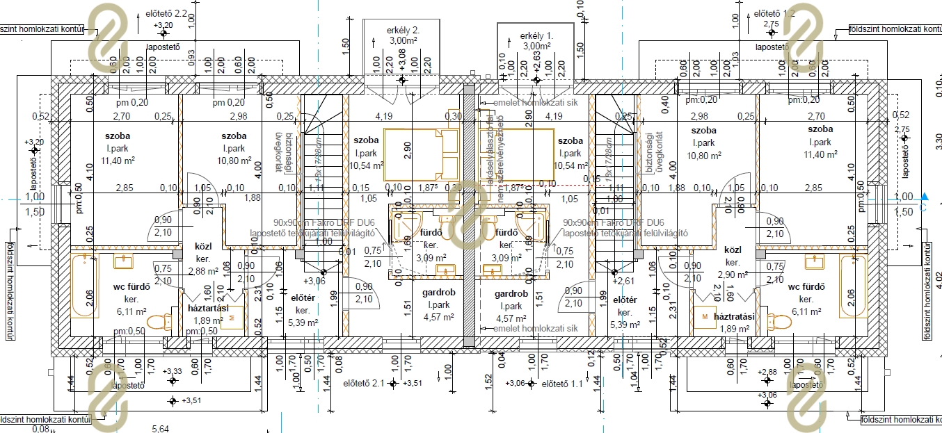
Eladásra kínálunk egy 140 m²-es, kiváló elrendezésű ikerházat, amely kizárólag a garázsnál kapcsolódik a szomszédos ingatlanhoz, így a családi házak nyugalmát biztosítja. Az ingatlan egy 500 m²-es telken helyezkedik el, ideális választás mindazok számára, akik tágas, jól átgondolt otthont keresnek.

A ház magas műszaki tartalommal, igényes kivitelezéssel készült, egy nagy múltú, megbízható fejlesztő kivitelezésében. A terek elosztása rendkívül praktikus és élhető, a nagy üvegfelületeknek köszönhetően az otthon kifejezetten világos.

Földszint:
– tágas nappali
– külön dolgozószoba, ideális home office-nak vagy vendégszobának

Emelet:
– egy kényelmes master bedroom
– 2 külön nyíló hálószoba
– fürdőszoba

A parkolás kiválóan megoldott: garázs + 3 felszíni beálló áll rendelkezésre, ami ritka és értékes előny.

Az elhelyezkedés ideális, a buszmegálló néhány perc sétával elérhető, így a mindennapi közlekedés gyors és kényelmes.

Az ingatlan tökéletes választás családok számára, akik minőségi kivitelezésű, világos, átgondolt elosztású otthont keresnek nyugodt környezetben, jó infrastruktúrával.

Irodánk segíti ügyfeleit abban az esetben is amennyiben a vásárláshoz:
-ingatlant kell értékesíteni
-hitelre lesz szüksége
-állami támogatást szeretne igénybe venni
-asztalosra, kertészre egyéb szakemberre van szüksége

Várom hívását!

Kapcsolati adatok

Sződy Zsuzsa

Sződy Zsuzsa

tanácsadó, okleveles ingatlanközvetítő

+36-30-128 7474

zsuzsa.szody@homeforme.hu

Érdeklődjön az ingatlanról, e-mailben!

Hasonló ingatlanok

Hívás