Details
|
Number of properties: 2 db |
Size of properties: 140 m2 |
Date of handover: 2026 IV. NEGYEDÉV |
Description
Eladó magas műszaki tartalmú, világos ikerház nagy telekkel
Eladásra kínálunk két 140 m²-es, kiváló elrendezésű ikerházat, amely kizárólag a garázsnál kapcsolódik a szomszédos ingatlanhoz, így a családi házak nyugalmát biztosítja. Az ingatlan lakásonként 500 m²-es telken helyezkedik el, ideális választás mindazok számára, akik tágas, jól átgondolt otthont keresnek.
A ház magas műszaki tartalommal, igényes építéssel készült, egy nagy múltú, megbízható fejlesztő kivitelezésében. A terek elosztása rendkívül praktikus és élhető, a nagy üvegfelületeknek köszönhetően az otthon kifejezetten világos.
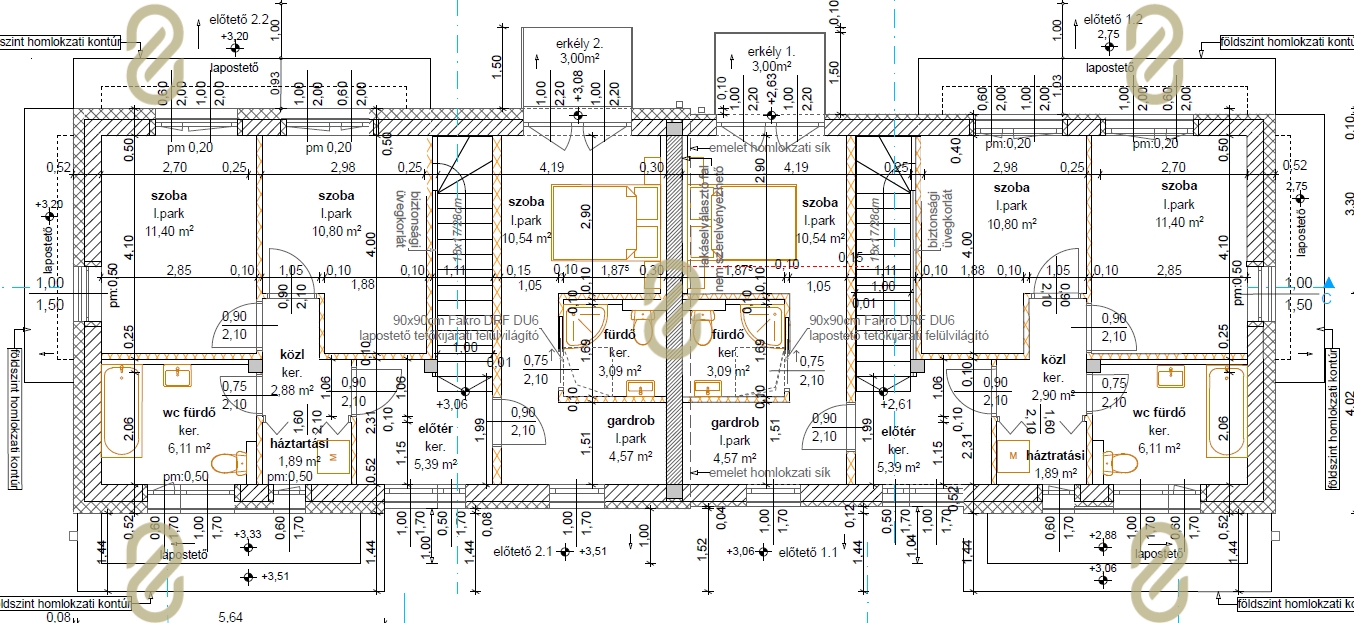
Földszint:
– tágas nappali - étkező - konyha
– külön dolgozószoba, ideális home office-nak vagy vendégszobának, vendég wc
Emelet:
– egy kényelmes master bedroom erkéllyel
– 2 külön nyíló hálószoba
– fürdőszoba
A parkolás kiválóan megoldott: garázs + 3 felszíni beálló áll rendelkezésre, ami ritka és értékes előny.
Az elhelyezkedés ideális, a buszmegálló néhány perc sétával elérhető, így a mindennapi közlekedés gyors és kényelmes.
Az ingatlan tökéletes választás családok számára, akik minőségi kivitelezésű, világos, átgondolt elosztású otthont keresnek nyugodt környezetben, jó infrastruktúrával.