+36 (30) 697 0000

Eladva
Budapest III. kerület Eladó Lakás
CSOK PLUSZ

Budapest - Eladó Lakás

Elhelyezkedés
III. kerület, Filatorigát
Újépítésű projekt
ÓBUDA TÁRSASHÁZ
Alapterület
41 m2
Ár
78.900.000 Ft
Hirdetés azonosító
336796

2 szobás lakás, nagy terasszal. Kiváló lokáció!

Leírás

TERVEZETT ÁTADÁS 2025.IV. NEGYEDÉV!

Megvételre kínálom Óbuda-Filatorigáton épülő 20 lakásos, kellemes méretű közös kerttel rendelkező, LIFTES társasházban ezt a harmadik emeleti lakást!
A kivitelező megbízható, nagy múltú cég, rengeteg elégedett és visszatérő ügyféllel, valamint megtekinthető referenciákkal rendelkezik!

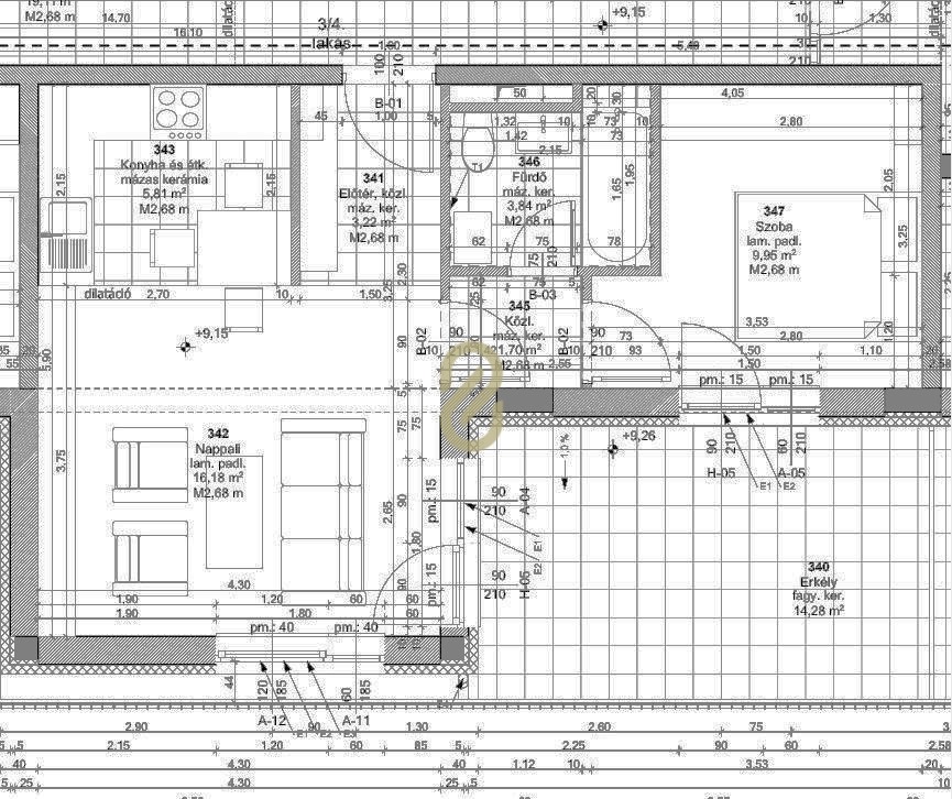
3. emelet, 4. lakás,
AMERIKAI KONYHÁS - NAPPALI + 1 HÁLÓSZOBA + 14 nm terasz!
- konyha és étkező 5.81 m2
- fürdő 3.84 m2
- nappali 16.18 m2
- szoba 9.95 m2
- közlekedő 1.70 m2
- előtér 3.22 m2
Összesen: 40.70 m2
- terasz 14.28 m2

Műszaki tartalma érintőlegesen:
- Külső nyílászárók:
Egyedi gyártású műanyag nyílászárók, háromrétegű thermo üvegezéssel.
- Bejárati ajtók:
Egyedileg készített fém borítású biztonsági ajtó, kitekintő nyílással a MABISZ által elfogadott kivitelben .
- Belső nyílászárók:
Furnérozott vagy fóliás sík tömör vagy üvegezett ajtók, matt króm kilinccsel (szerelve br. 90.000.-Ft értékben).
- Hőközpont:
Kiemelten energiatakarékos hőszivatyú és 1db tartalék gáz kazán puffertárolós melegvízellátással. Lakásoknál digitális hőmennyiségmérővel.
- Hőleadók:
Oxigéndiffúz mentes csövezéssel, padlófűtés rendszerrel, méretezés szerint.
- Szaniter áruk:
Duravit vagy Villeroy szaniterek (50.000.Ft bruttó /db) A fürdőkád egyenes akrilkád (70.000,- Ft/db)

Infrastruktúrája kiváló, pár perc sétára található rengeteg kiszolgáló egység, többek között a GoBuda Mall, STOP-SHOP, az 1-es, 17-es és 19-es villamos végállomása, buszmegállók, iskolák, óvodák, gyógyszertár, boltok.

TEREMGARÁZS BEÁLLÓHELY 6 MFt./db, valamint tárolók 1.5 MFt/db.

Eladó lakások:
Fszt.1. 71 nm + 17 nm terasz + kertkapcsolat
Fszt.2. 76 nm + 20.5 nm terasz + kertkapcsolat
1.em.1. 69 nm + 12 nm terasz
1.em.2. 48 nm ELADVA
1.em.3. 43 nm ELADVA
1.em.4. 69 nm + 15 nm terasz ELADVA
1.em.5. 44 nm + 7.6 nm terasz ELADVA
1.em.6. 78 nm
2.em.1. 69 nm + 12 nm terasz
2.em.2. 48 nm ELADVA
2.em.3. 43 nm ELADVA
2.em.4. 69 nm + 15 nm terasz
2.em.5. 44 nm + 7.6 nm terasz ELADVA
2.em.6. 78 nm
3.em.1. 107 nm + 25 nm terasz
3.em.2. 44 nm + 15 nm terasz
3.em.3. 102 nm + 28 nm terasz
3.em.4. 41 nm + 14 nm terasz
3.em.5. 73 nm + 13 nm terasz
3.em.6. 74 nm + 16 nm terasz

Irodánk segíti ügyfeleit abban az esetben is amennyiben a vásárláshoz:
- ingatlant kell értékesíteni
- hitelre lesz szüksége
- állami támogatást szeretne igénybe venni
- asztalosra, kertészre egyéb szakemberre van szüksége.

További kérdéseivel vagy megtekintéssel kapcsolatban várom megtisztelő hívását!

Kapcsolati adatok

Kiss Bea

Kiss Bea

értékesítő, vezető tanácsadó

+36-30-155 3535

bea.kiss@homeforme.hu

Érdeklődjön az ingatlanról, e-mailben!

Hasonló ingatlanok

Hívás