Részletes adatok
|
Ingatlanok száma: 13 db |
Ingatlanok mérete: 41 - 107 m2 |
Szobák száma: 2 - 4 |
Átadás ideje: 2026. I. NEGYEDÉV |
Leírás
TERVEZETT MŰSZAKI ÁTADÁS 2026. I. NEGYEDÉV
Megvételre kínálom Óbuda-Filatorigáton épülő 20 lakásos, kellemes méretű közös kerttel rendelkező, LIFTES társasház lakásait!
A kivitelező megbízható, nagy múltú cég, rengeteg elégedett és visszatérő ügyféllel, valamint megtekinthető referenciákkal rendelkezik!
Műszaki tartalma érintőlegesen:
- Külső nyílászárók:
Egyedi gyártású műanyag nyílászárók, háromrétegű thermo üvegezéssel. Elektromos redőny és szúnyoghálóval felszerelve!
- Bejárati ajtók:
Egyedileg készített fém borítású biztonsági ajtó, kitekintő nyílással a MABISZ által elfogadott kivitelben .
- Belső nyílászárók:
Furnérozott vagy fóliás sík tömör vagy üvegezett ajtók, matt króm kilinccsel (szerelve br. 130.000.-Ft értékben).
- Hőközpont:
Kiemelten energiatakarékos hőszivattyú és 1db tartalék gáz kazán puffertárolós melegvízellátással. Lakásoknál digitális hőmennyiségmérővel.
- Hőleadók:
Oxigéndiffúz mentes csövezéssel, padlófűtés rendszerrel, méretezés szerint.
- Szaniter áruk:
Duravit vagy Villeroy szaniterek (50.000.Ft bruttó /db) A fürdőkád egyenes akrilkád (70.000,- Ft/db)
Infrastruktúrája kiváló, pár perc sétára található rengeteg kiszolgáló egység, többek között a GoBuda Mall, STOP-SHOP, az 1-es, 17-es és 19-es villamos végállomása, buszmegállók, iskolák, óvodák, gyógyszertár, boltok.
TEREMGARÁZS BEÁLLÓHELY 6 MFt./db, tárolók 1.5 MFt/db.
Eladó lakások:
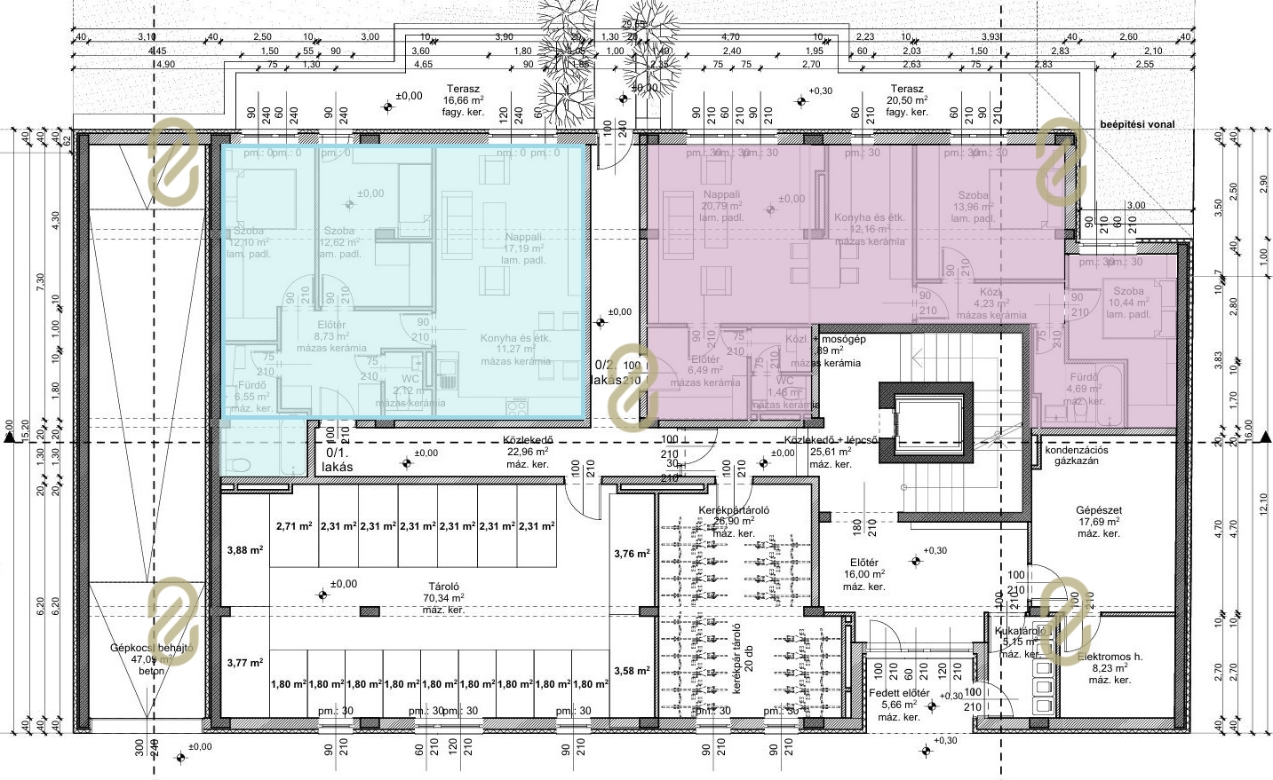
Fszt. 1. 71 nm + 17 nm terasz + kertkapcsolat
Fszt. 2. 76 nm + 20.5 nm terasz + kertkapcsolat
1.em.1. 69 nm + 12 nm terasz
1.em.6. 78 nm
2.em.4. 69 nm + 15 nm terasz
2.em.6. 78 nm
3.em.3. 102 nm + 28 nm terasz
3.em.5. 73 nm + 13 nm terasz
3.em.6. 74 nm + 16 nm terasz
Irodánk segíti ügyfeleit abban az esetben is amennyiben a vásárláshoz:
- ingatlant kell értékesíteni
- hitelre lesz szüksége
- állami támogatást szeretne igénybe venni
- asztalosra, kertészre egyéb szakemberre van szüksége.
További kérdéseivel vagy megtekintéssel kapcsoltban várom megtisztelő hívását!
Ingatlanok
| Azonosító | Alapterület | Építés éve | Emelet | Terasz/Erkély | Szoba | Ár | CSOK PLUSZ | Részletek |
|---|---|---|---|---|---|---|---|---|
| 336787 | 76 m2 | 2025 | Földszint | 21 m2 | 3 | 146.800.000 Ft | IGEN | Részletek |
| 336786 | 70 m2 | 2025 | Földszint | 17 m2 | 3 | 134.000.000 Ft | IGEN | Részletek |
| 336788 | 69 m2 | 2025 | 1. emelet | 12 m2 | 3 | 120.200.000 Ft | IGEN | Részletek |
| 336790 | 78 m2 | 2025 | 1. emelet | Nincs | 3 | 117.000.000 Ft | IGEN | Részletek |
| 336791 | 78 m2 | 2025 | 2. emelet | Nincs | 3 | 124.800.000 Ft | IGEN | Részletek |
| 336792 | 68 m2 | 2025 | 2. emelet | 15 m2 | 3 | 122.000.000 Ft | IGEN | Részletek |
| 336789 | 69 m2 | 2025 | 2. emelet | 12 m2 | 3 | ELKELT | IGEN | |
| 336805 | 74 m2 | 2025 | 3. emelet | 16 m2 | 3 | 135.200.000 Ft | IGEN | Részletek |
| 336795 | 43 m2 | 2025 | 3. emelet | 15 m2 | 2 | ELKELT | IGEN | |
| 336797 | 72 m2 | 2025 | 3. emelet | 13 m2 | 3 | 130.500.000 Ft | IGEN | Részletek |
| 336796 | 41 m2 | 2025 | 3. emelet | 14 m2 | 2 | ELKELT | IGEN | |
| 336794 | 102 m2 | 2025 | 3. emelet | 28 m2 | 4 | 191.000.000 Ft | NEM | Részletek |
| 336793 | 107 m2 | 2025 | 3. emelet | 25 m2 | 4 | ELKELT | NEM |
Térkép